Immeuble administratif Post Mercier
Luxembourg-GareLe projet de l’immeuble dit « Mercier » réalisé par POST Luxembourg se situe dans le quartier de la Gare où il occupe un îlot complet d’une surface de 60 x 60 m autour de la rue de Reims. Il doit son nom à la société Mercier qui exploitait une usine de fabrication de champagne sur ce site.
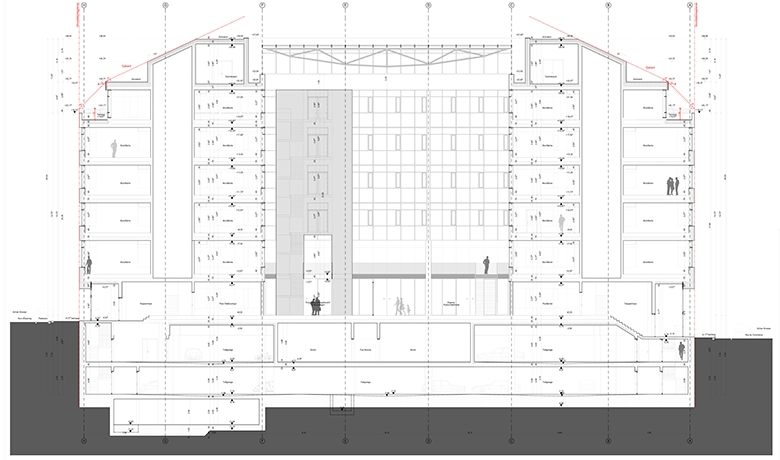
L’immeuble comporte deux sous-sols et 6 étages. Le rez-de-chaussée et le premier étage sont partiellement accessibles au public avec des guichets postaux, des surfaces commerciales et de rencontre dans le grand atrium central. Les quatre étages restants sont entièrement réservés à des bureaux et sont aménageables d’une manière flexible en plusieurs unités. Celles-ci s’organisent autour de l’atrium couvert d’une verrière de 24,5m de portée servant de puit de lumière naturelle.
La structure du bâtiment est réalisée en béton armé avec des dalles massives sur piliers (entraxes 8,10m x 5,40m). Ces « dalles actives » incluent un système de tubes intégrés permettant d’utiliser la masse du béton pour le stockage et l’échange d’énergie thermique. Afin d’optimiser l’apport de lumière naturelle, ces mêmes dalles sont exécutées en béton apparent de teinte très claire.
Toutes les démarches architecturales et techniques sont mises en œuvre dans un esprit de durabilité et de confort d’utilisation sous l’objectif de la certification DGNB au niveau PLATIN, tout en respectant un délai de réalisation très serré de trois ans et demi, études et démolition comprises.
Notons qu’avant d’avoir pu démarrer les travaux de construction en septembre 2014, il a fallu assainir les anciennes bâtisses (présence d’amiante), démolir ces constructions, dépolluer le sol (ancienne station essence), et réaliser un blindage périphérique des rues conjoint aux terrassements.
Le nouveau bâtiment « Mercier » de la POST sera certifié suivant les critères de construction durable DGNB qui inclut les thèmes d’isolation au bruit et de confort acoustique. INCA réalise les études acoustiques requises durant la phase de conception dans le but de respecter les seuils imposés, assiste la maîtrise d’œuvre en matière d’acoustique durant la mise en soumission des travaux et aura une mission de surveillance durant la phase exécution notamment pour dénicher des défauts de mise-en-œuvre tels des ponts phoniques. En dehors de ce volet d’acoustique du bâtiment INCA prend régulièrement des mesures de bruit du chantier pour documenter les exigences en matière d’établissements classés.








